
Lotes en Venta en La Bella, Pereira
Lotes con áreas que van desde 1.258 m² hasta 1.551 m²
Gratis
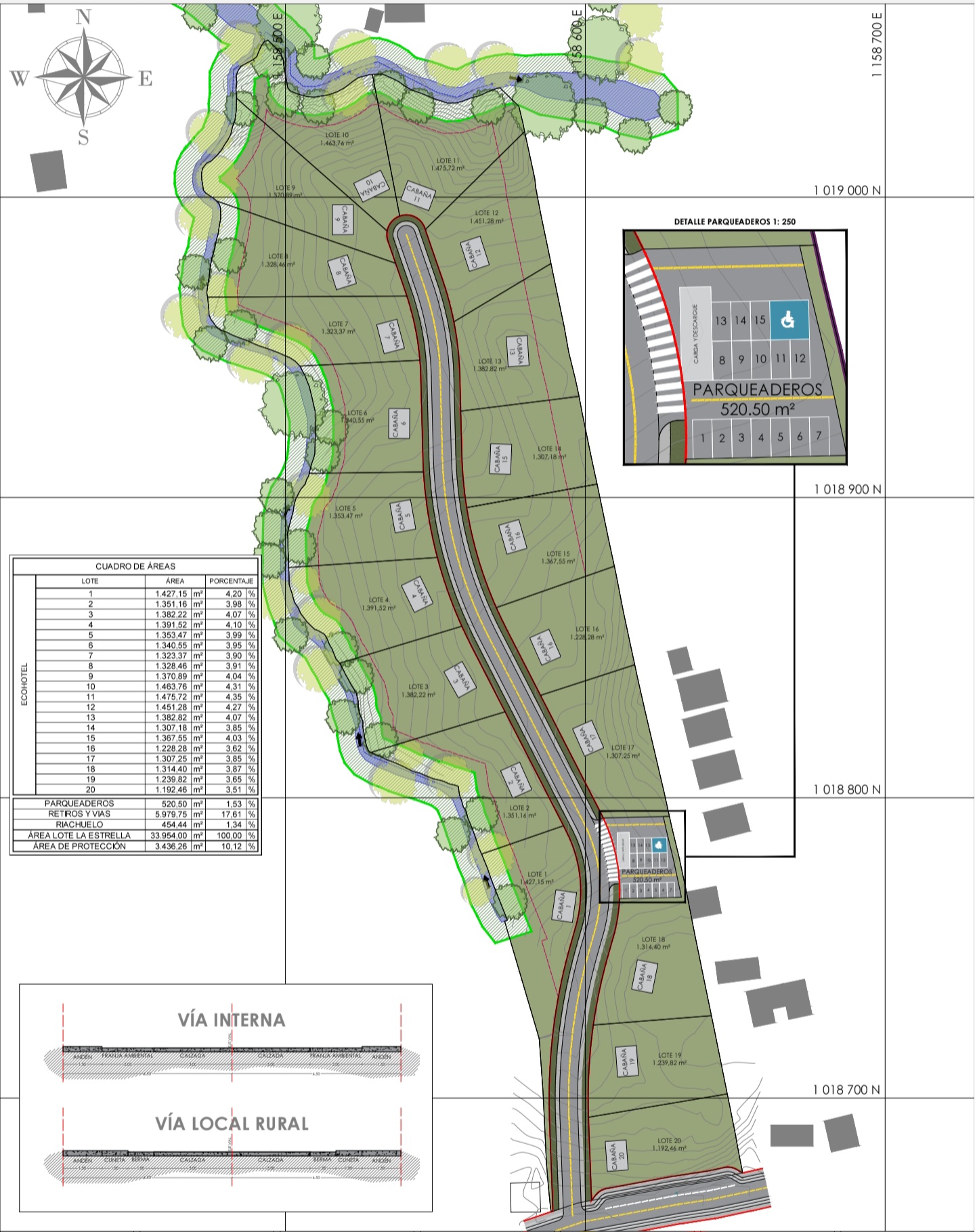
Se presenta el exclusivo Proyecto La Bella, una oportunidad única de inversión en lotes campestres diseñados para quienes buscan construir la casa de sus sueños en un entorno de naturaleza, tranquilidad y alta valorización. El proyecto cuenta con una distribución estratégica que optimiza las vistas y el contacto con el paisaje circundante.
El desarrollo se compone de un número limitado de lotes con áreas que van desde 1.258 m² hasta 1.551 m² (según el Cuadro de Áreas), garantizando la amplitud y la privacidad necesarias para una residencia campestre de lujo.
Características Destacadas del Proyecto:
Lotes Amplios: El área promedio supera los 1.350 m², ofreciendo un espacio generoso para paisajismo, zonas verdes privadas y construcciones amplias.
Vías y Acceso: El diseño urbanístico incluye una vía interna para la circulación controlada y conexión directa con una vía local rural.
Zonas Verdes y Protección: El proyecto integra amplias áreas de protección y zonas verdes, asegurando la conservación del entorno natural.
Valorización: La ubicación y el concepto de exclusividad del proyecto lo posicionan como una inversión de alta rentabilidad.
Valor y Disponibilidad:
Los lotes están disponibles con un valor aproximado por metro cuadrado que oscila entre $180.000 COP y $215.000 COP, dependiendo de la ubicación, topografía y vista de cada unidad. Los lotes centrales o con mejores atributos de diseño alcanzan el precio más alto por m², reflejando su exclusividad. El proyecto ofrece un total de 20 lotes con diversas características para adaptarse a diferentes necesidades de inversión.
¡Asegure su inversión en el Proyecto La Bella! Este es el lugar ideal para construir un futuro en armonía con la naturaleza, sin renunciar a la exclusividad.
Lote | Área (m²) | Valor Aprox. por m² | Precio Total Aproximado (COP) |
1 | 1.351,12 | $180.000 | $243.201.600 |
2 | 1.332,60 | $190.000 | $253.194.000 |
3 | 1.331,52 | $190.000 | $252.988.800 |
4 | 1.391,52 | $180.000 | $250.473.600 |
5 | 1.353,92 | $200.000 | $270.784.000 |
6 | 1.337,30 | $210.000 | $280.833.000 |
7 | 1.334,06 | $210.000 | $280.152.600 |
8 | 1.258,80 | $210.000 | $264.348.000 |
9 | 1.325,92 | $215.000 | $284.072.800 |
10 | 1.442,40 | $180.000 | $259.632.000 |
11 | 1.455,41 | $190.000 | $276.527.900 |
12 | 1.551,34 | $200.000 | $310.268.000 |
13 | 1.451,28 | $200.000 | $290.256.000 |
14 | 1.451,89 | $200.000 | $290.378.000 |
15 | 1.337,07 | $215.000 | $287.470.050 |
16 | 1.337,63 | $215.000 | $287.590.450 |
17 | 1.337,97 | $215.000 | $287.663.550 |
18 | 1.338,40 | $215.000 | $287.756.000 |
19 | 1.339,32 | $200.000 | $267.864.000 |
20 | 1.341,40 | $190.000 | $254.866.000 |
